13
$1,159 Rent
Listed 12 hours ago
10114 105 Avenue, #102
· 1
· 1
· -
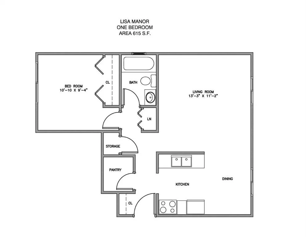
· 615
Key Facts
Key facts for 10114 105 Avenue, #102
Property Type
Other
Parking
Parking Pad , Parking Pad
MLS #
A2261373
Size
615 sqft
Basement
-
Listed on
-
Lot size
-
Days on Market
-
Year Built
-
Maintenance Fee
-
Description
1 bed unit in Lisa Manor! Conveniently located 2 bed 1 bath apartment. Unit features entry closet, storage room/pantry, and newer vinyl plank floors. Private balcony, 1 good sized room and 4 piece bathroom all with privacy locks. The building features keyless fob entry, door buzzer, security cam...eras and security patrols. Onsite coin laundry. Rent includes water, heat. Tenant pays electricity. Above ground parking available for $10/mo. Cat friendly with $50/mo pet fee.Enjoy the perks of living in this central location. Close to Muskoseepi Park and walking distance to the public library. Close to four schools and public transportation. Renter will enjoy the convenience of a central location with restaurants and local shopping close by. Powered above ground parking stall available for $10/mo.
Similar Properties (No results)
Room Types
Bedroom - Primary
11`1" x 12`0"
Dimensions -
0 sqft
4pc Bathroom
7`5" x 4`11"
Dimensions -
0 sqft
Courtesy of: Grassroots Realty Group Ltd.
Copyright Pillar 9™. All rights reserved. Information is deemed reliable but not guaranteed.